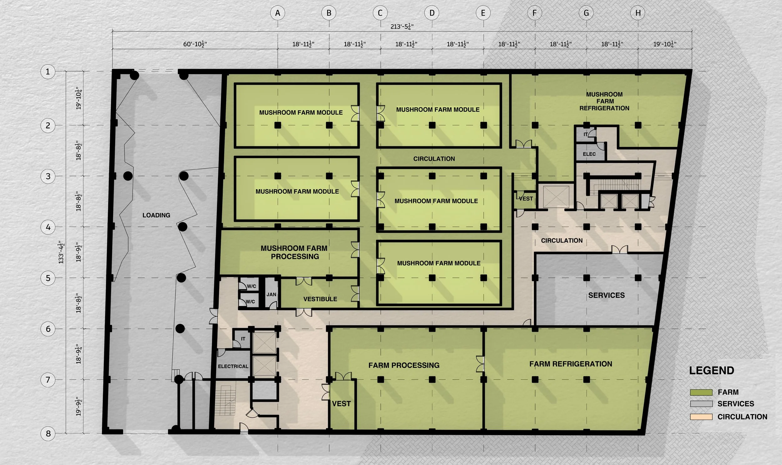
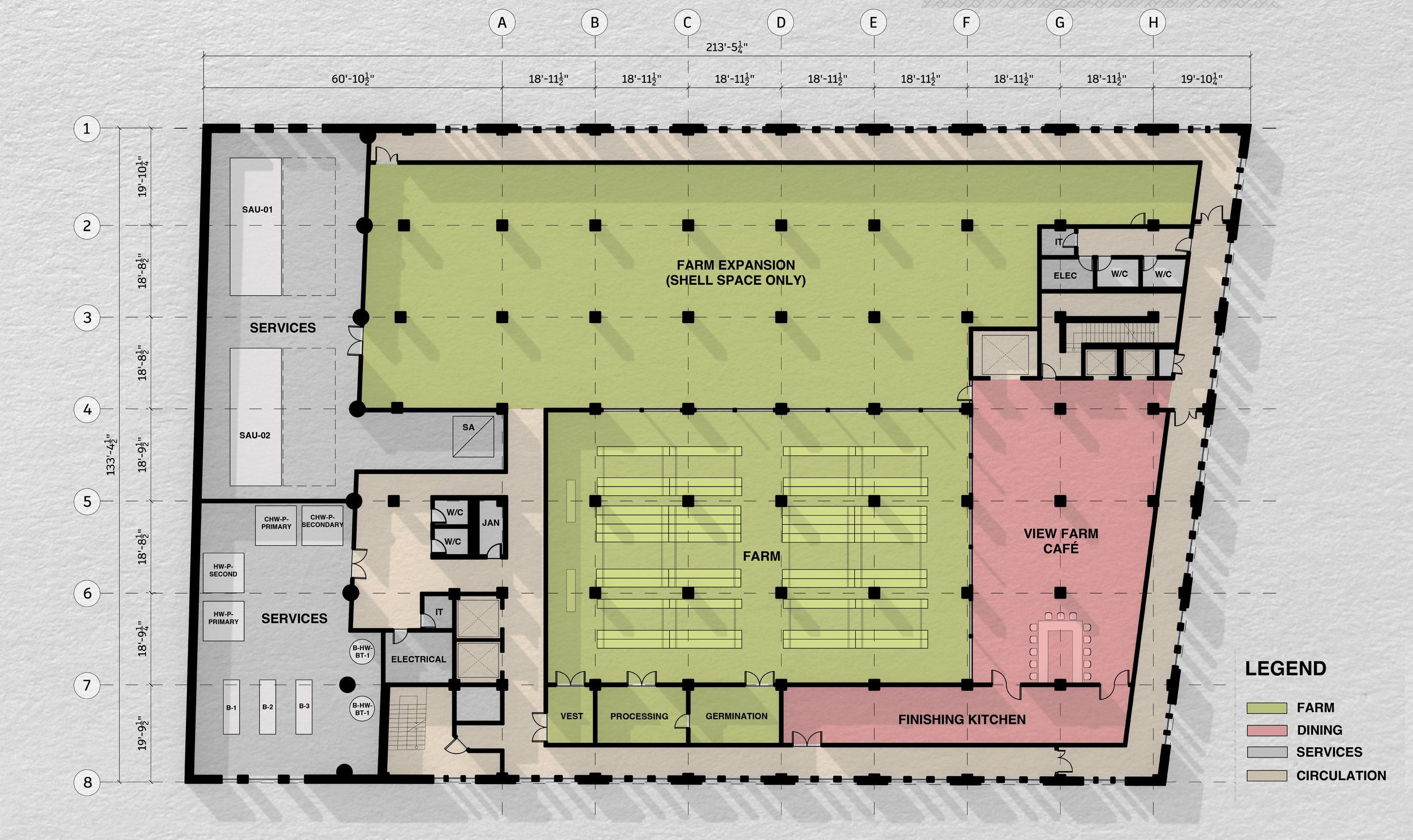
28,000sf over two floors of flexible growing and processing space. The upper floor utilizes CRCLR’s “Blade” technology to produce peak-efficiency, self-contained growing. The lower floor produces and maintains 95° relative humidity within Norbec’s “NOREX-In” insulated panel systems, allowing for the production of tropical produce and a variety of fungi at scale.