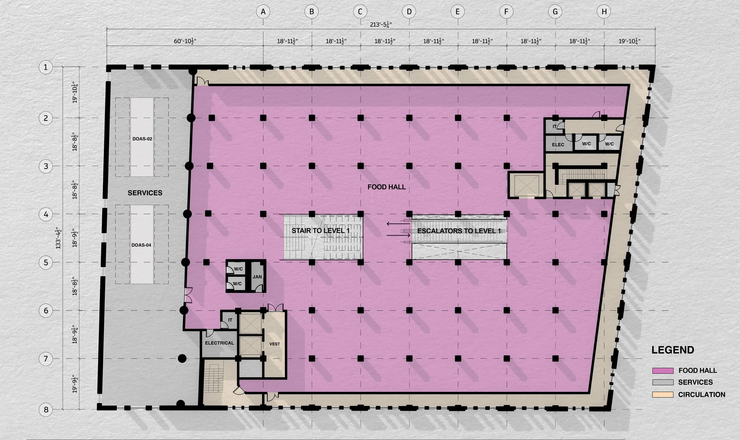
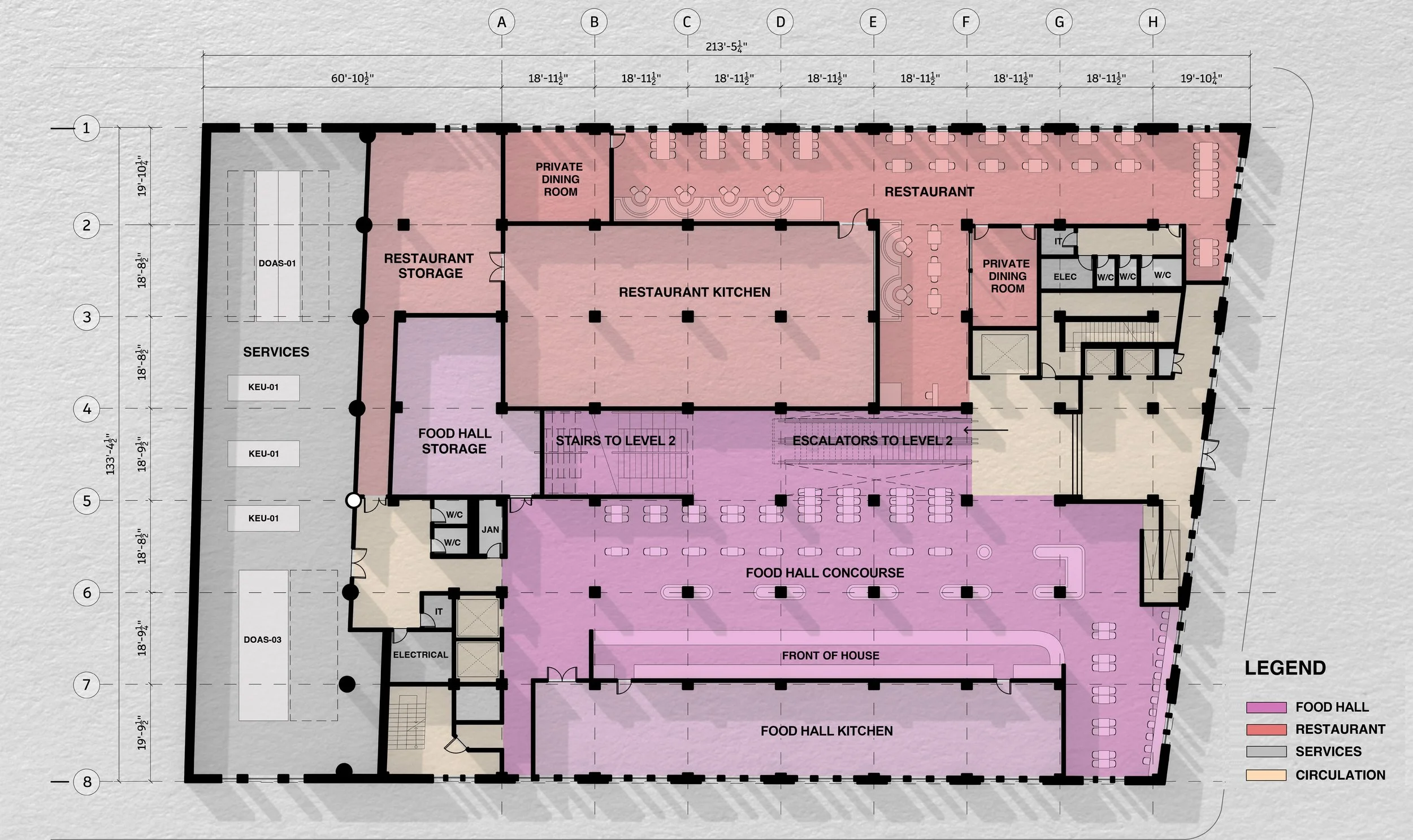
Two-level, 26,000sf food hall with 14-foot ceilings and on-site, farmed, “grown yesterday” produce that can respond flexibly to market demand.

Gianni Careddu, CC BY-SA 4.0 <https://creativecommons.org/licenses/by-sa/4.0>, via Wikimedia Commons